OpenLandLAB Renovierung

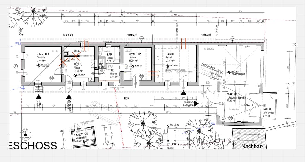
Die teilweise problematische Nordwand (Ziegel und Lehm) soll durch Anbau zur Innenwand werden.
Angedacht sind zwei Durchbrüche vom Altbestand nach Norden.
Der antique Ofen in der Küche wurde entfernt. Zimmer1 und Küche sollen zusammengelegt werden (Teilentfernung der Zwischenwand).
NEUE Heizung?
Holzöfen dürften zunehmend in Verruf kommen. Können mit einer Wärmepumpe die 5 Zimmer beheizt werden?
Flächen:
Zimmer1 23,04m2
Küche 18,5m2
Bad-Vorraum 11,69m2
Zimmer2 15,64m2
Lager 27,17m2
SUMME 96,04m2
ZIMMER1



KÜCHE




OFEN WEG



BAD


ZIMMER2




LAGER




